5 Bedroom
4 Bathroom
2,500 - 3,000 ft2
Fireplace
Central Air Conditioning
Forced Air
$1,555,000
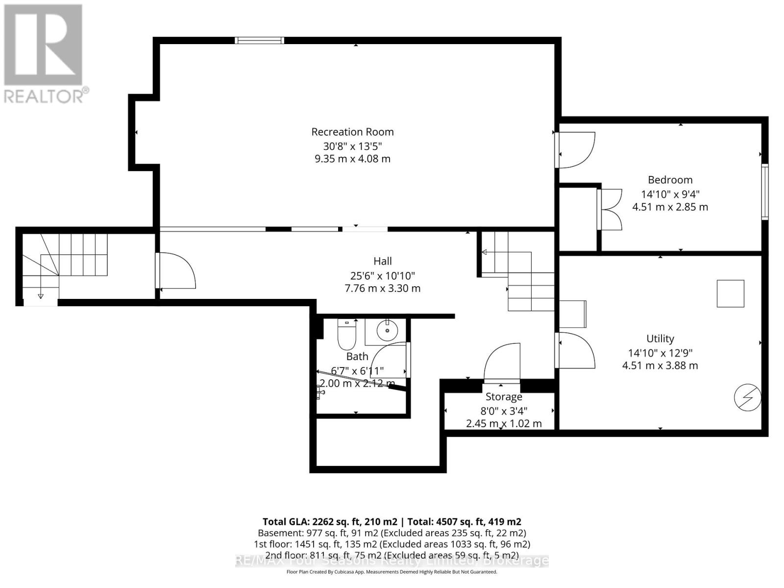
Desirable Lockhart neighbourhood! Situated on a beautifully landscaped estate lot, this custom-built family home (5 Bedrooms/4 Bathrooms) has been meticulously maintained and thoughtfully upgraded throughout. Backing onto Kinsmen Park, the property offers exceptional privacy and a serene natural setting. Enjoy year-round comfort in the stunning three-season glass solarium (23.9 X12.10 sf ), complete with an integrated hot tub and Chantico glass fireplace-an ideal space to relax or entertain. The spacious kitchen features granite countertops, a breakfast bar, and flows seamlessly into a large dining area with a custom gas fireplace, perfect for family gatherings. A bright family room with cathedral ceilings and an additional gas fireplace provides a warm and inviting atmosphere. Second level~ The primary suite serves as a private retreat, offering a soaker tub, glass shower, walk-in closet, and scenic views toward Osler Ski Resort, two generously sized bedrooms and a 4-piece bath. A versatile main floor bedroom, currently used as a den, is ideal for guests or a home office. Great space in the fully finished basement is designed for entertaining, featuring a quality pool table, spacious bedroom, 3-piece bath, and separate access to both the garage and backyard-ideal for potential in-law accommodation. Car enthusiasts will appreciate the oversized Double garage (22 X 22 ft), while the fully fenced backyard offers a private outdoor oasis with expansive decking (610 sf) a custom shed, perennial gardens, and the solarium as its centerpiece.16 Carmichael Crescent is a timeless home offering 4500+ sq ft of living space (including solarium), situated on a quiet crescent surrounded by lovely homes. Walking distance to 4 schools~ Admiral Collingwood, Notre-Dame de Huronie, Our Lady of the Bay, and CCI, as well as downtown, trails, and recreation. Southern Georgian Bay offers a fabulous lifestyle all seasons on the sparkling blue water of Georgian Bay! View the Virtual Tour (id:19593)
Property Details
|
MLS® Number
|
S13048164 |
|
Property Type
|
Single Family |
|
Community Name
|
Collingwood |
|
Equipment Type
|
Water Heater |
|
Features
|
Sump Pump |
|
Parking Space Total
|
6 |
|
Rental Equipment Type
|
Water Heater |
|
View Type
|
Mountain View |
Building
|
Bathroom Total
|
4 |
|
Bedrooms Above Ground
|
4 |
|
Bedrooms Below Ground
|
1 |
|
Bedrooms Total
|
5 |
|
Age
|
31 To 50 Years |
|
Amenities
|
Fireplace(s) |
|
Appliances
|
Garage Door Opener Remote(s), Dishwasher, Dryer, Microwave, Stove, Washer, Window Coverings, Refrigerator |
|
Basement Development
|
Finished |
|
Basement Features
|
Separate Entrance, Walk-up |
|
Basement Type
|
N/a (finished), N/a, N/a |
|
Construction Style Attachment
|
Detached |
|
Cooling Type
|
Central Air Conditioning |
|
Exterior Finish
|
Brick |
|
Fireplace Present
|
Yes |
|
Fireplace Total
|
3 |
|
Flooring Type
|
Hardwood, Tile, Slate |
|
Foundation Type
|
Concrete |
|
Half Bath Total
|
1 |
|
Heating Fuel
|
Natural Gas |
|
Heating Type
|
Forced Air |
|
Stories Total
|
2 |
|
Size Interior
|
2,500 - 3,000 Ft2 |
|
Type
|
House |
|
Utility Water
|
Municipal Water |
Parking
|
Attached Garage
|
|
|
Garage
|
|
|
Inside Entry
|
|
Land
|
Acreage
|
No |
|
Sewer
|
Sanitary Sewer |
|
Size Depth
|
105 Ft |
|
Size Frontage
|
70 Ft |
|
Size Irregular
|
70 X 105 Ft |
|
Size Total Text
|
70 X 105 Ft |
Rooms
| Level |
Type |
Length |
Width |
Dimensions |
|
Second Level |
Bedroom 4 |
4.21 m |
4.13 m |
4.21 m x 4.13 m |
|
Second Level |
Bathroom |
1.54 m |
3.19 m |
1.54 m x 3.19 m |
|
Second Level |
Primary Bedroom |
4.21 m |
4.13 m |
4.21 m x 4.13 m |
|
Second Level |
Bathroom |
3.04 m |
3.29 m |
3.04 m x 3.29 m |
|
Second Level |
Bedroom 3 |
3.12 m |
4.08 m |
3.12 m x 4.08 m |
|
Basement |
Recreational, Games Room |
9.35 m |
4.08 m |
9.35 m x 4.08 m |
|
Basement |
Bedroom 5 |
4.51 m |
2.85 m |
4.51 m x 2.85 m |
|
Basement |
Bathroom |
2 m |
2.12 m |
2 m x 2.12 m |
|
Main Level |
Kitchen |
3.68 m |
4.15 m |
3.68 m x 4.15 m |
|
Main Level |
Living Room |
4.5 m |
7.18 m |
4.5 m x 7.18 m |
|
Main Level |
Dining Room |
5.21 m |
4.43 m |
5.21 m x 4.43 m |
|
Main Level |
Bathroom |
1.4 m |
1.5 m |
1.4 m x 1.5 m |
|
Main Level |
Bedroom |
2.75 m |
3.24 m |
2.75 m x 3.24 m |
|
Main Level |
Laundry Room |
2.54 m |
4.11 m |
2.54 m x 4.11 m |
|
Main Level |
Foyer |
4.67 m |
2.33 m |
4.67 m x 2.33 m |
https://www.realtor.ca/real-estate/29661136/16-carmichael-crescent-collingwood-collingwood
LORETTA MCINNIS
Salesperson
(705) 445-8500
RE/MAX Four Seasons Realty Limited
67 First St.
Collingwood,
Ontario
L9Y 1A2
(705) 445-8500
(705) 445-0589
www.remaxcollingwood.com/